焼杉デザイン実例
「施工者/株式会社エムズアソシエイツ様」
「施工者/株式会社ダイコク様」

「駒ヶ根市O様邸」

「駒ヶ根市T様邸(鋼板withサイディングVer.)」

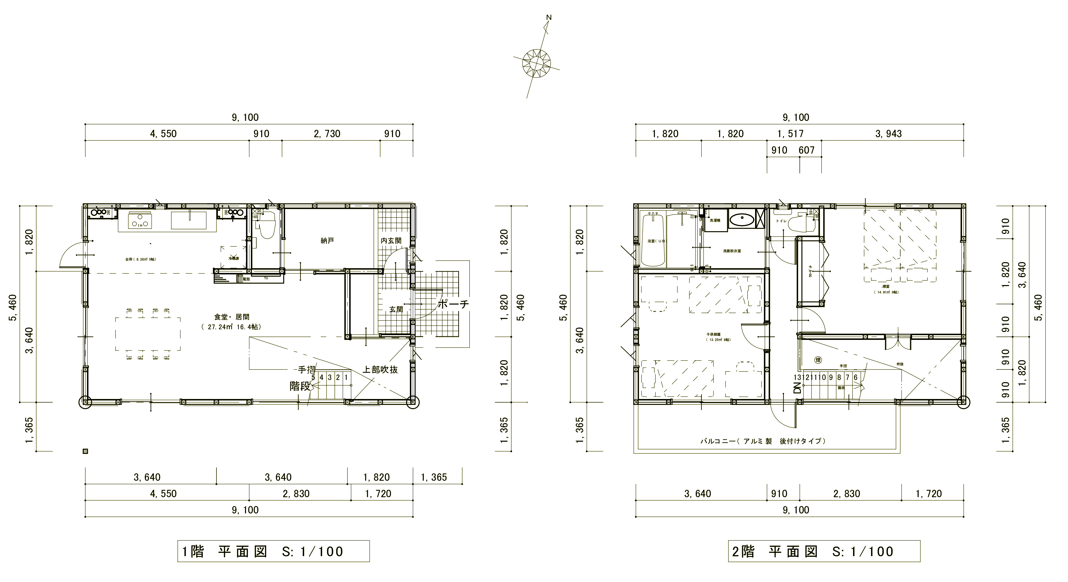
「駒ヶ根市T様邸」

「駒ヶ根市モデルハウス平屋」

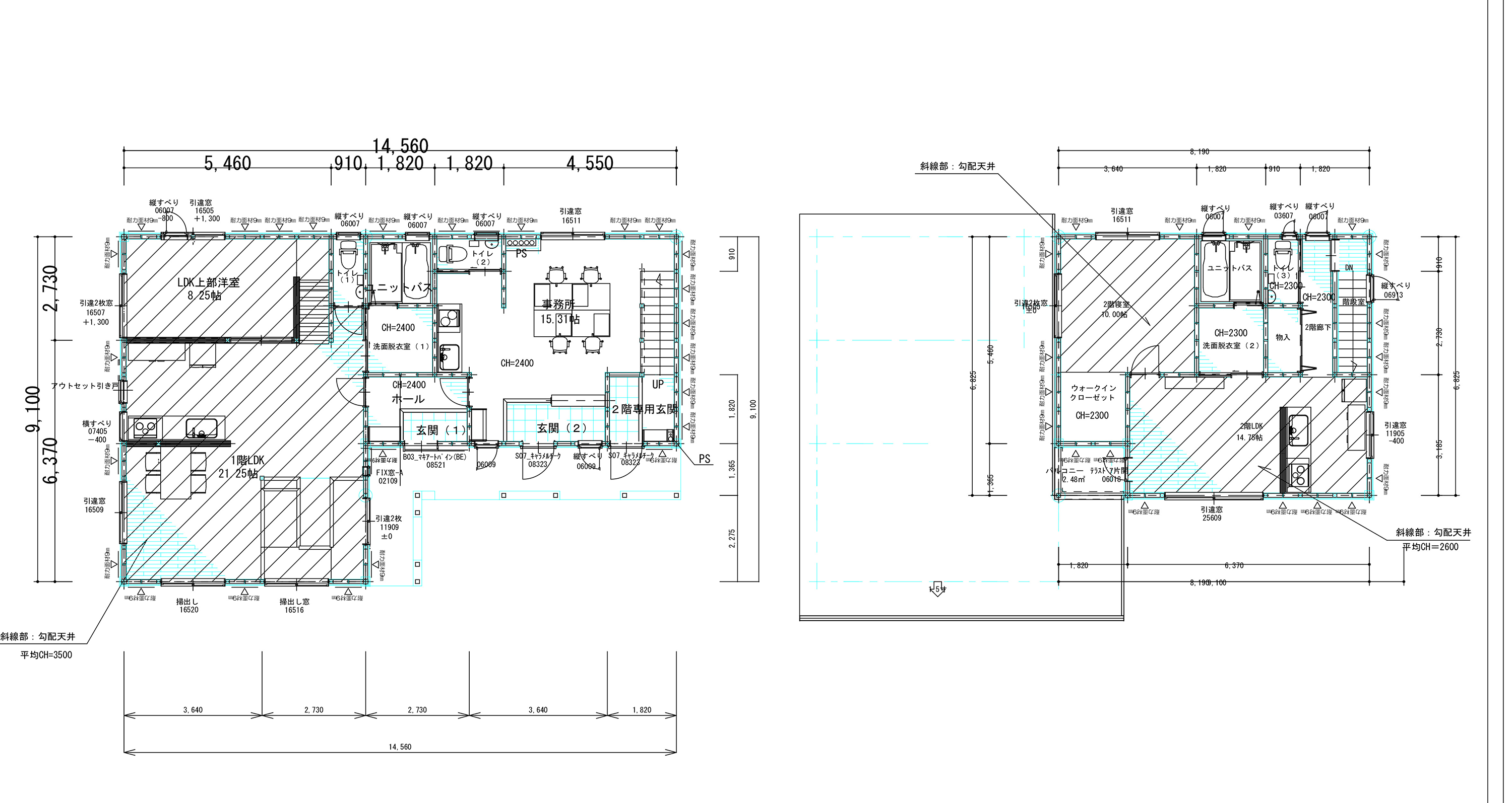
「駒ヶ根市モデルハウス2階建て」

「駒ケ根市K様邸」

「飯田市H様邸」
自然素材「焼杉」の美しさを楽しむ家
販売価格2,200万円(税別・土地代含まず)
「工業製品では実現できない自然素材の美しさを提供したい」当社の家づくりにはそんな思いを込めています。
外壁には伝統工法の「焼杉」を使い、「三角焼き」手法により炭化層にもしっかりとした厚みを持たせています。
耐久性に優れ、独特の美しさが長く続くのが特徴です。
「Less is more (少ないことはより豊かなこと)」に重きを置いた間取りはシンプルかつ必要最小限に。
出隅・入隅をなくし表面積を小さくした家は断熱性・耐震性・メンテナンス性・コストパフォーマンスに優れ、不動産価値を下げません。

焼杉と国産骨材の塗壁で仕上げた外観。
天然素材ならではの質感と風合いで目を引くデザインに仕上げました。
焼杉は光の当たり方や見る角度で様々な美しい表情を帯びます。

表面を炭化した焼杉の壁は腐食せず耐久性に優れます。
また、メンテナンスが少なくて済むので経済的にも優れています。
修繕が必要な場合でも一枚ずつ板を外せるので簡単です。

構造材をそのままに見せ、無垢の床材には安心安全な国産自然塗料「ロハスオイル」を塗っています。
温かみのあるLDKスペースを叶えました。

吹き抜けには大きな開口部を設け、コンパクトながらも明るく広々としたデザインになっています。
風呂場も2階に設けて1階の空間を確保しました。
階段もオープンステアで視界が抜けるため、空間のつながりを邪魔しません。
施工実例7.「駒ヶ根市O様邸」
施工実例6.「駒ヶ根市T様邸(鋼板withサイディングVer.)」
施工実例5.「駒ヶ根市T様邸」全面焼杉外壁平屋
施工実例4.「駒ヶ根市焼杉の家モデルハウス平屋」
施工実例3.「駒ヶ根市焼杉の家モデルハウス2階建て」
施工実例2.「駒ケ根市K様邸」
施工実例1.「飯田市H様邸」
焼杉住宅とスマートハウス
一般住宅は「スマートハウス」であることが基本となって一層本格化するでしょう。
ソーラーパネルが発電を担う「創エネ」、電力は蓄電池あるいは電気自動車に蓄えておく「蓄エネ」、そして家の中ではエコな機器を使用する「省エネ」。ヨーロッパや日本の自動車メーカーは電気自動車へのシフトを加速させていますから、自家用車も深夜に充電した電気自動車で出かける暮らしが現実化していきます。
トゥモローズウェイは太陽光発電システムでスマートハウスに貢献する一方で、魅力的な建築デザインにも関われないかと考えてきました。そこで注目したのが「焼杉板」。外壁建材として製作をスタートしました。
安価なスマートハウスへの展望
これまで当社は、多くの太陽光パネルを設置してきました。
しかしその一方で、建築費を抑えるために太陽光パネルを断念せざるを得ない一般住宅の事例も数多く見てきました。
理由は簡単です。若い子育て世代が念願の家を建てようとする時、建築費用を抑える必要から太陽光発電をあきらめざるを得ないといった事例です。本来は生活費を抑えることが可能になる太陽光発電こそ、子育て世代には採用していただきたいのです。
そこでトゥモローズウェイでは、全ての住宅にソーラーパネルを標準装備としています。

























































































































































